The Martlets
Slindon Common, Residential
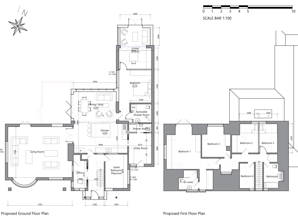
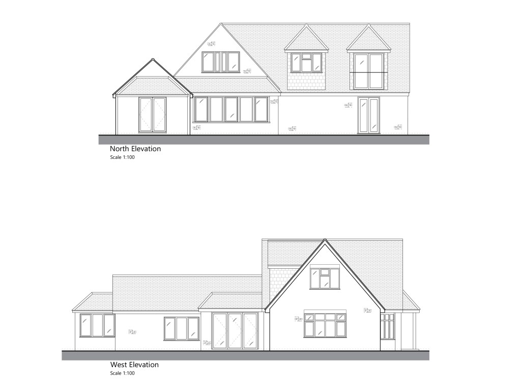
The project included internal alterations and rear single storey extensions to a detached dwelling located within the South Downs National Park. The proposal forms a new front porch by enclosing the existing open porch, dismantlement of an existing rear conservatory and replacement with a single storey rear extension forming an open plan kitchen dining area, and a single storey extension to the northern wing to create additional accommodation for the client’s parents.

Proposed Floor Plans

Proposed Elevations

Proposed Elevations

