The Crescent
Horsham, Residential
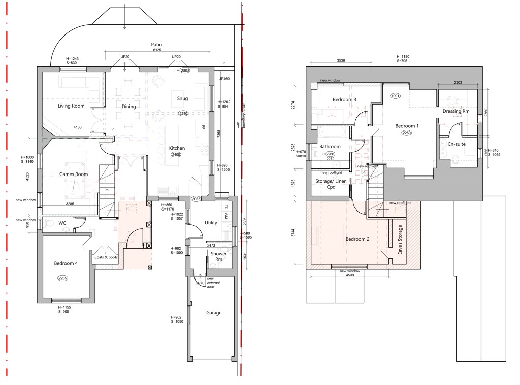
The proposal includes a front extension which would create additional space at first floor level to a detached property, to create an additional bedroom and a family bathroom at first floor level. The proposal also includes extending the existing rear dormer and internal reordering to enhance the ground floor layout and flow of the existing property. Through discussions with the client and exploration in the feasibility study stage it was possible to enhance the property and create the additional spaces required at first floor without extending the property further.

Proposed Floor Plans

Proposed Elevations

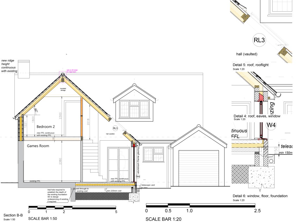
Technical Drawing – Section Through Extension

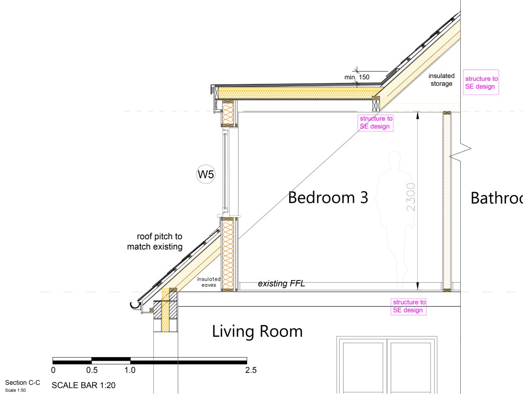
Technical Drawing – Section Through Dormer

