St Leonards Road
Horsham, Residential
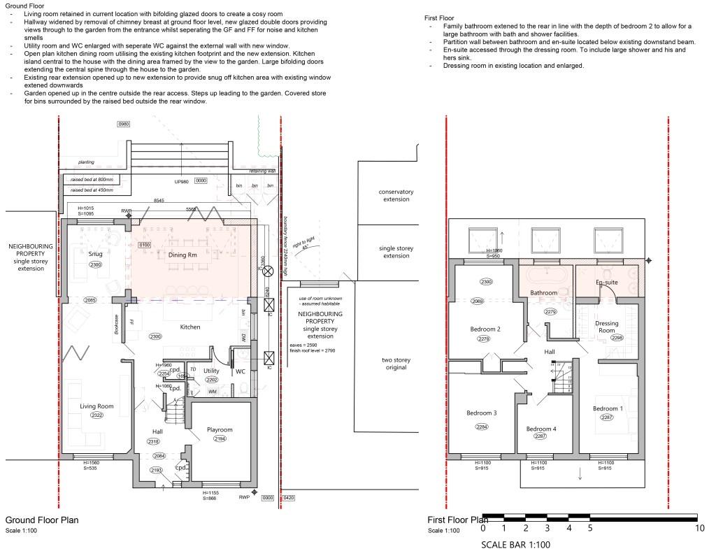
The project includes a two-storey rear extension to a semi-detached property to create an enlarged open plan kitchen dining room with snug and enhanced utility room at ground floor level; and an ensuite bathroom and enlarged family bathroom at first floor level.

Proposed Floor Plans

Proposed Elevations

Massing Model, Proposed Rear Elevation

Massing Model, Proposed View Through Kitchen

Massing Model, Proposed View From Kitchen/Dining

