Plough Cottage
Rudgwick, Residential
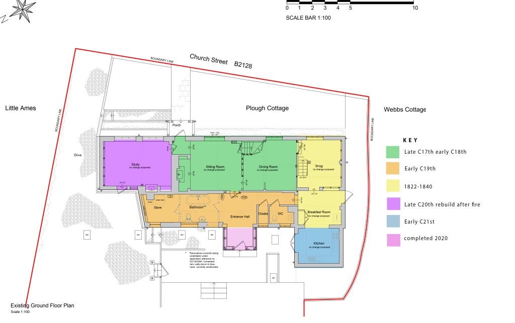
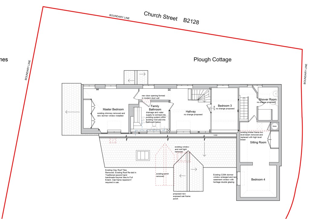
Supporting our clients at Plough Cottage through several internal and external alteration and repair projects to their Grade II Listed property, located within a Conservation Area. Works have included; relaying of the existing roof, enlarging and replacing existing windows, replacement timber framed porch, installation of a first-floor bathroom, landscaping, reordering of the existing entrance porch and ground floor area beneath the catslide roof to form a new kitchen and bathroom, and many other internal alterations to improve the functionality and to repair and conserve the Heritage asset.

Front Elevation, Porch

Front elevation

Rear Porch

Rear Elevation

Historic Development of Property, Existing Floor Plan

Proposed Ground Floor Plan

Proposed First Floor Plan

Proposed Elevations

