Cranleigh Village Hall
Cranleigh, Community
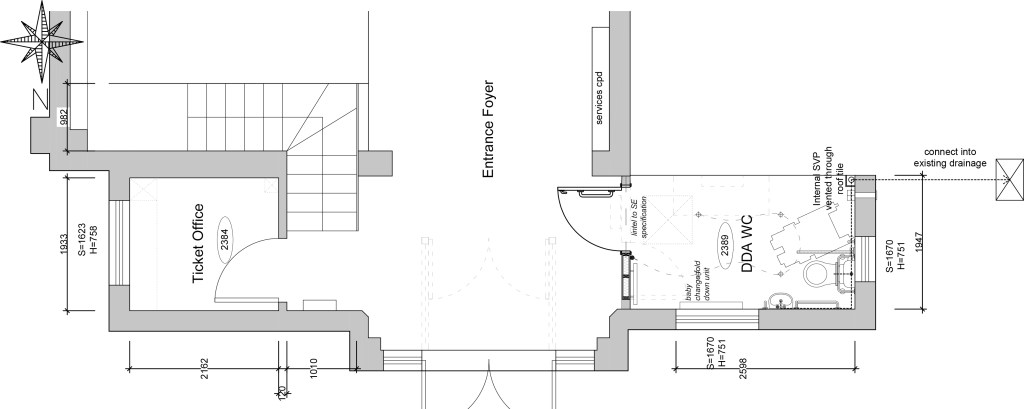
The project includes internal alterations throughout the Village Hall, as part of a Gonvernment Funded regeneration project which included; extension to a kitchenette to create a small kitchen space and a new cafe, structural repairs to the main stage with new floor finish, new audio visual throughout the main hall, relocation of DDA toilet facilities, and redecoration throughout.

Cafe and Kitchen

Cafe

Kitchen

Stage, photo by Martin Bamford

Stage, Main Hall

DDA wc

Proposed Kitchen Plans and Elevations

Proposed DDA wc drawing

Proposed Stage Drawings

