Chantrees Point
Godalming, Residential
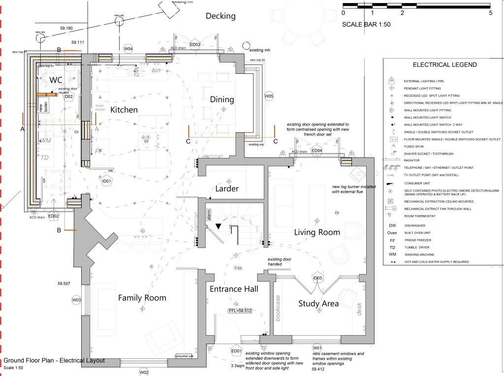
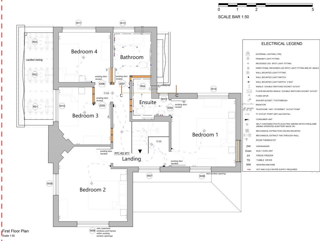
The project extends and renovates the existing detached two-storey dwelling, rationalising the layout at both ground and first floor level. A modest side extension creates a side entrance with utility room and wc, freeing up floor space within the existing ground floor to create a large open kitchen dining room with views and links with the rear garden. Upstairs, the circulation space is reordered to make best use of the floor area and create a larger family bathroom and an ensuite, whilst retaining four well-proportioned bedrooms, all within the existing floor area.

Proposed Elevations

Proposed Floor Plan

Proposed First Floor Plan

Technical Drawing, Section Through Bay

